О нашей компании
«СОТЫ» - компания, специализирующаяся на строительстве частных домов из материала СИБИТ. За годы успешной работы мы заслужили репутацию надежного партнера, создающего дома, в которых комфортно жить долгие годы.

Наша миссия - построить надежный и уютный дом для каждого жителя Новосибирска и Новосибирской области, создавая условия для комфортной и счастливой семейной жизни.

Наши ценности:
- Качество жизни клиента — наша главная ценность. Мы стремимся создавать жилье, которое станет надежным убежищем и любимым местом отдыха всей семьи.
- Профессионализм сотрудников — основа нашей репутации. Опытные бригады выполняют работу точно и аккуратно.
- Надежность материалов — залог долговечности ваших инвестиций в дом мечты.
Этапы работ
  • Заключение договора
    Предоставим полную информацию по всем этап строительства и расскажем про все материалы которые будут использованы. Поможем с выбором проекта и подбором участка, а так же с оформлением всех необходимых документов.
  • Подготовка участка
    Анализ и обследование участка, очистка участка, планировка и разметка, инженерные работы - обеспечивают участок необходимыми коммуникациями: подключают к электросети, обеспечивают водоснабжение, организуют канализацию.
  • Проектирование
    Архитектурные решения - архитектор определяет пропорции здания, создаёт детализированные чертежи.
    Разработка конструктивных решений - инженеры и архитекторы совместно создают прочную и устойчивую конструкцию дома, учитывая местные строительные нормы и требования
  • Возведение
    Устройство фундамента. Возведение стен - после застывания фундамента начинается возведение стен. Монтаж перекрытий - установка межэтажных перекрытий (если предусмотрено проектом). Устройство крыши - монтаж стропильной системы, укладка утеплителя, гидро- и пароизоляции, а также устройство кровельного покрытия.
  • Отделка
    Внутренняя отделка дома - включает устройство инженерных систем, штукатурку и выравнивание стен, укладку напольных покрытий, декоративную отделку.
    Внешняя отделка - облицовка стен фасадными материалами
  • Финальные работы
    Проверка всех систем и конструкций на соответствие проекту и стандартам качества, уборка территории, получение разрешения на ввод дома в эксплуатацию и подписание актов.
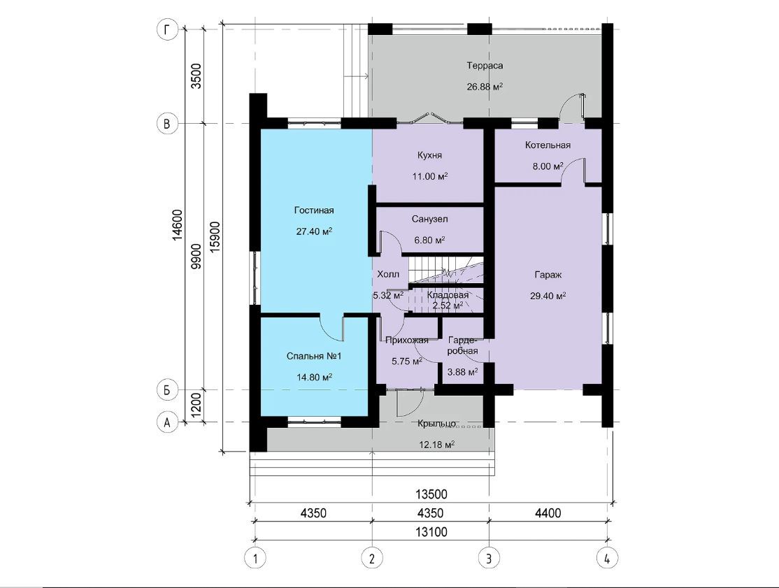
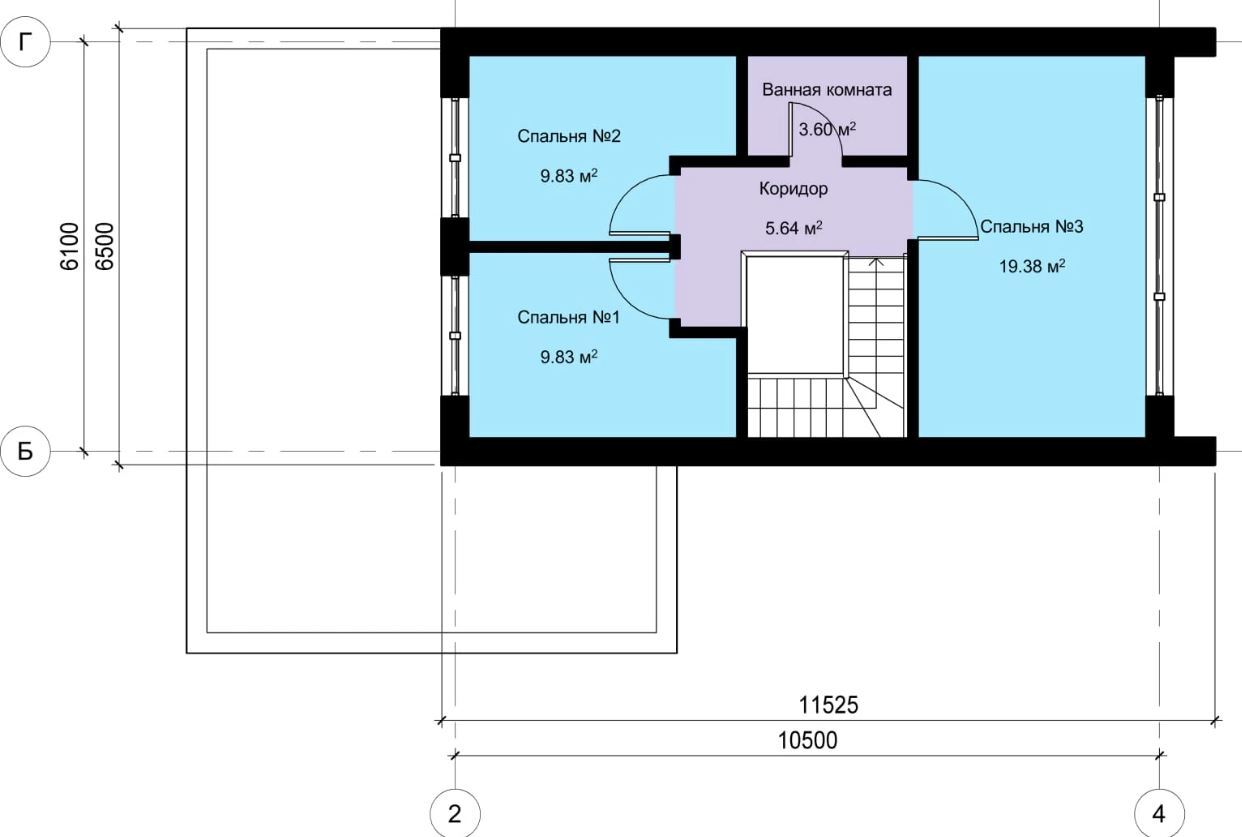
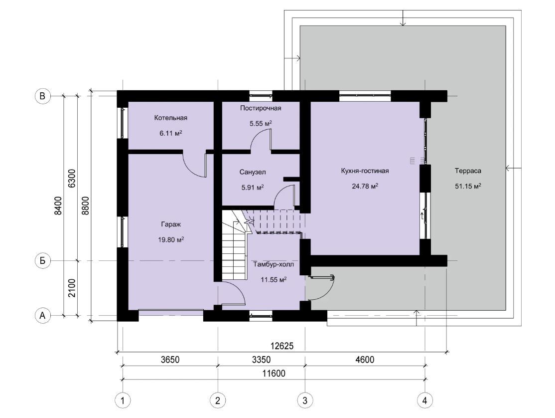
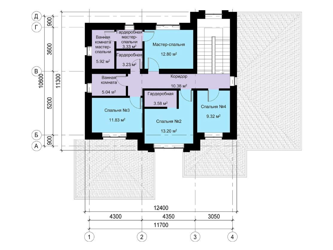
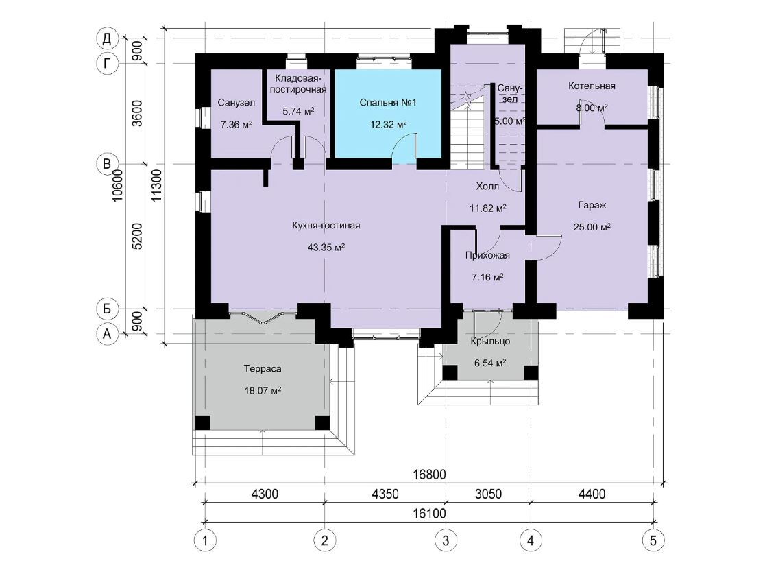
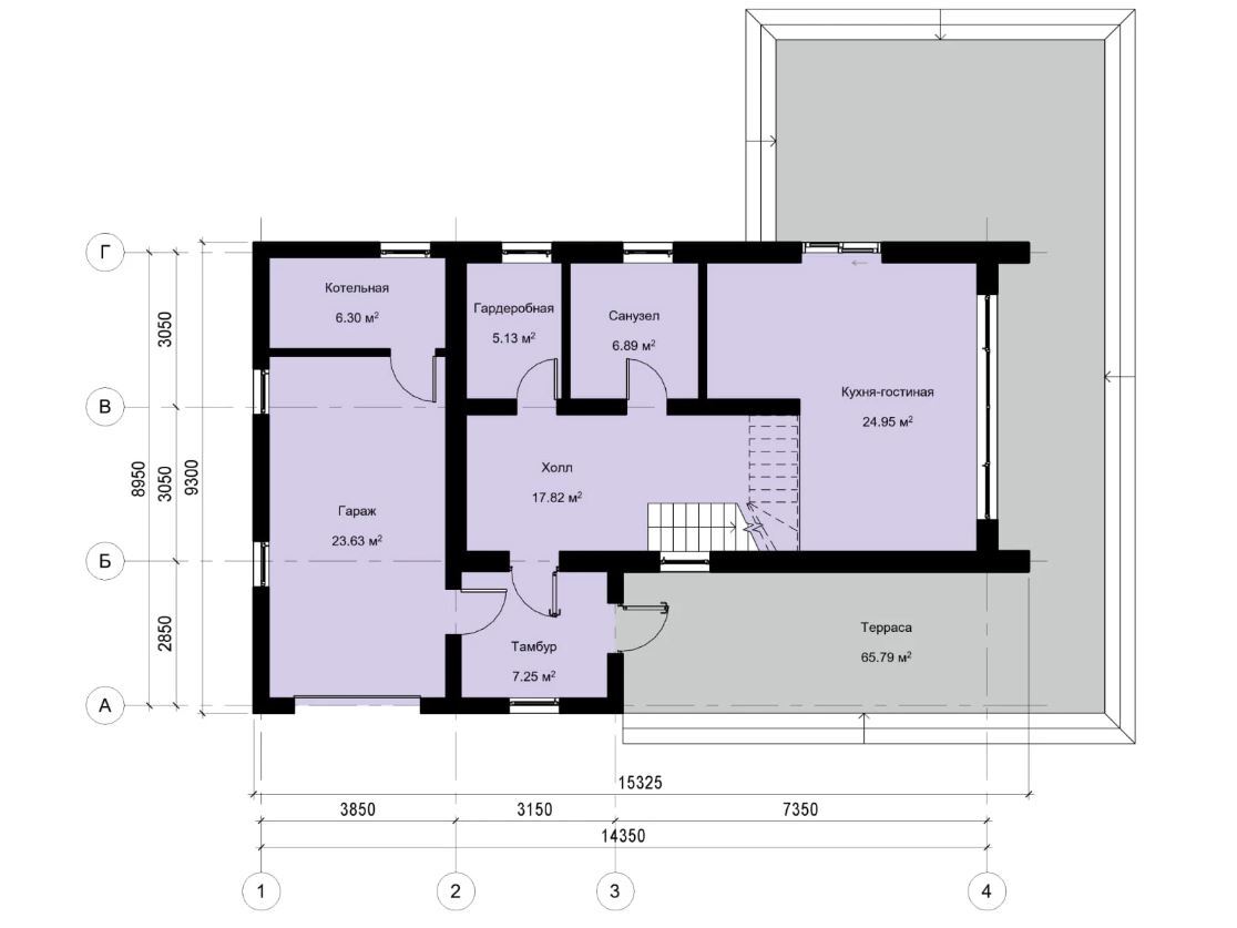
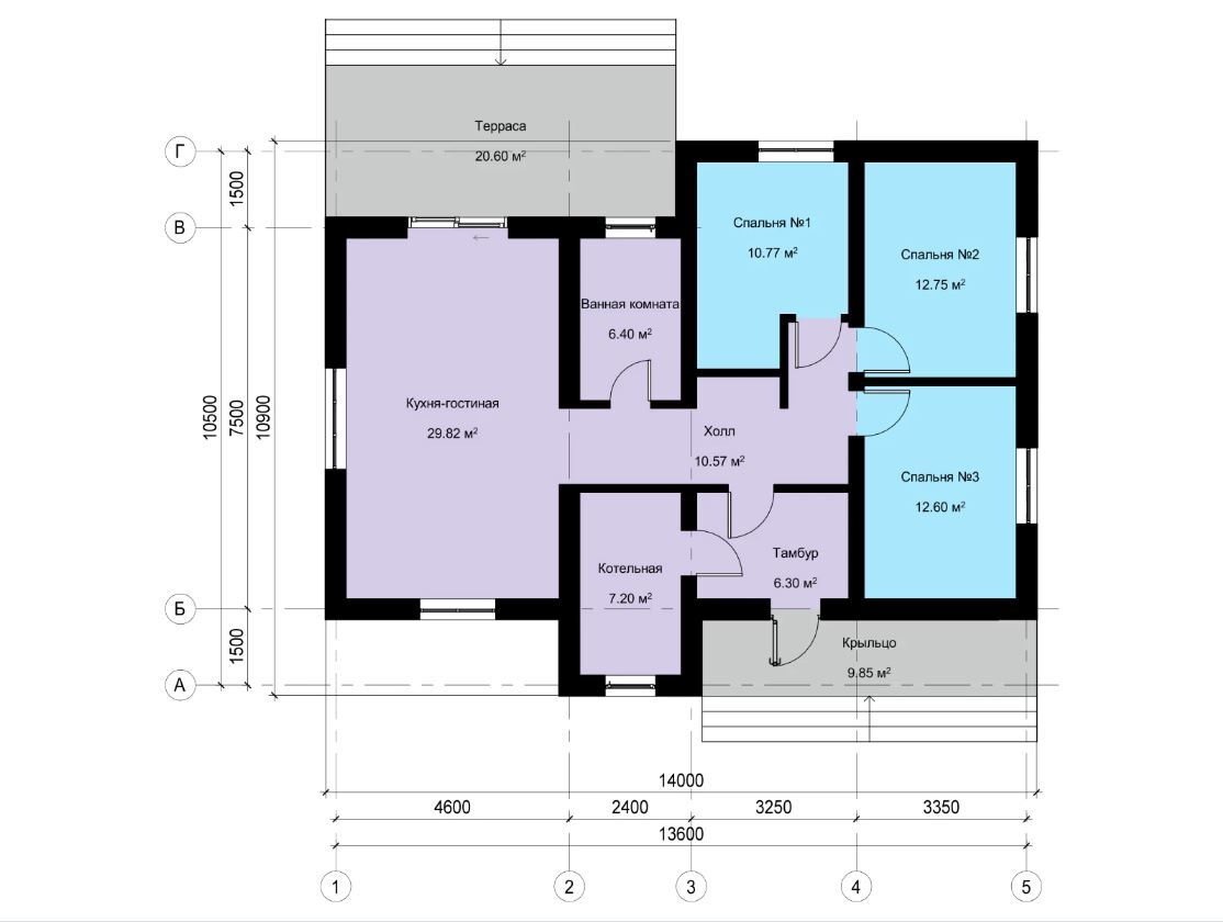
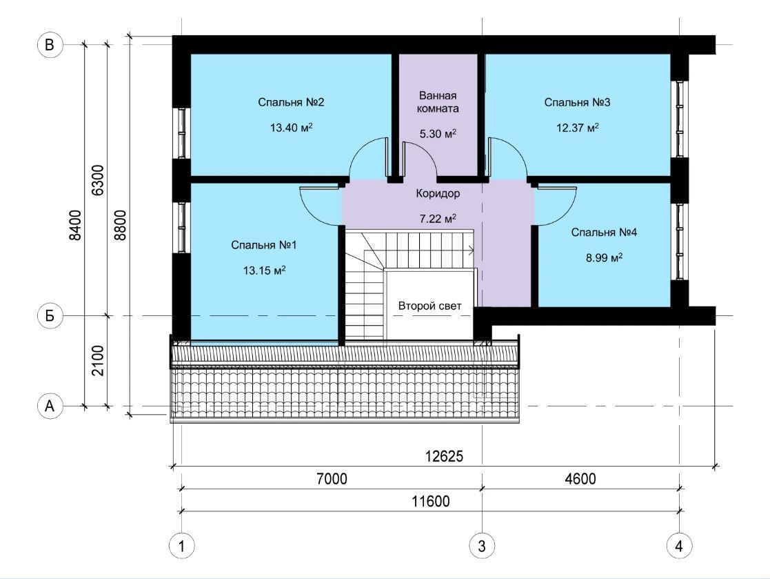
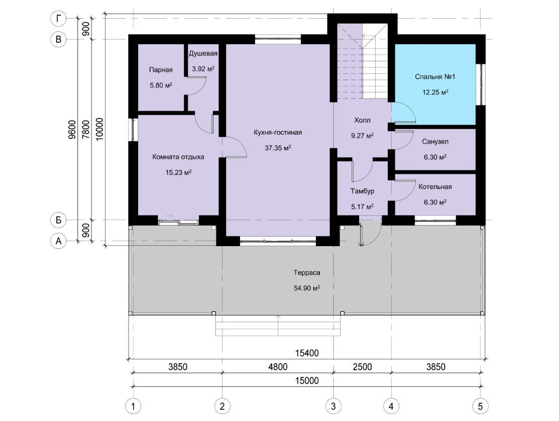
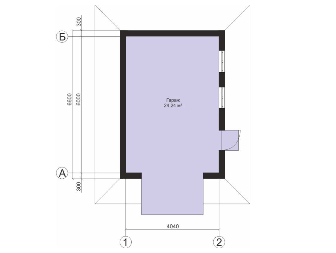
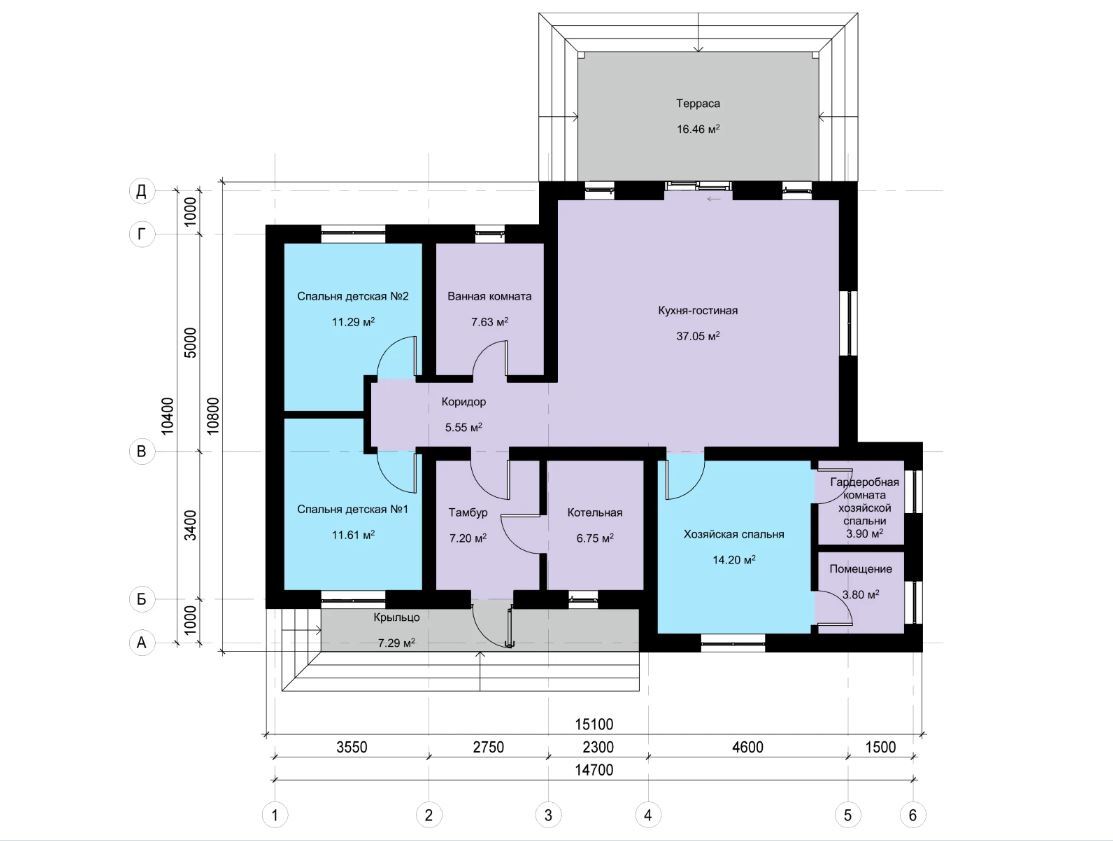
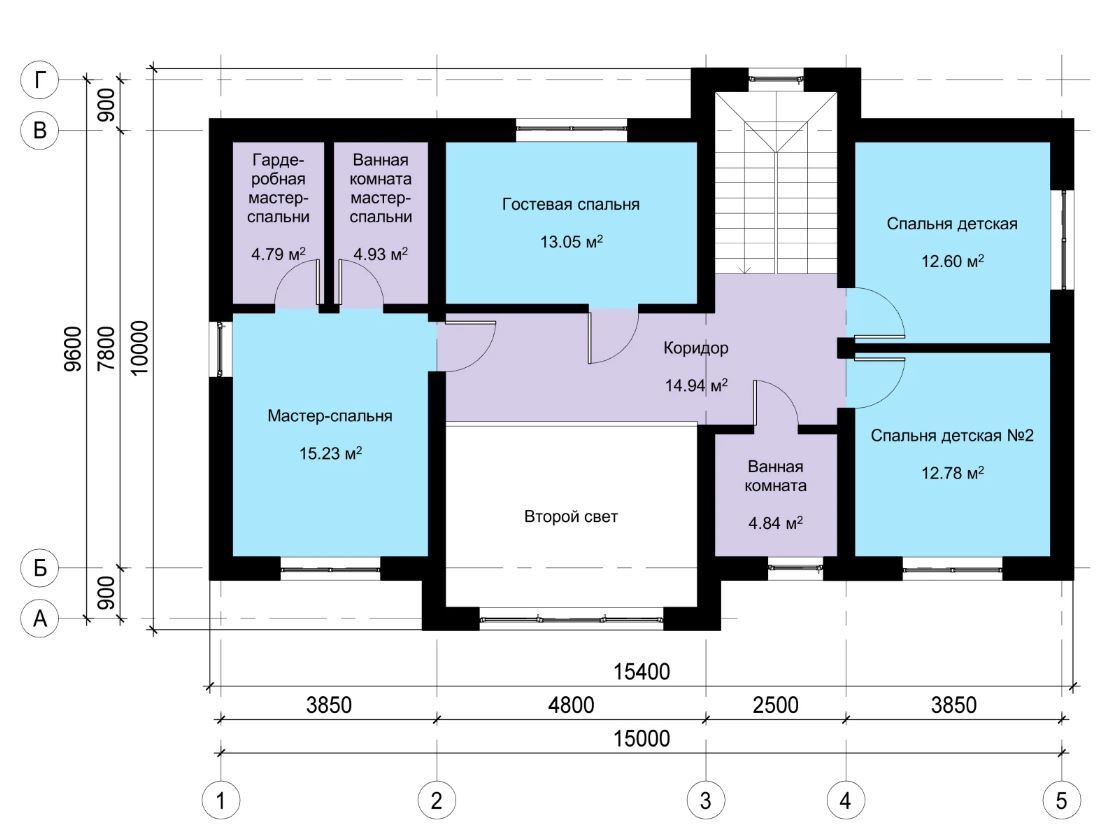
Проекты домов
Больше вариантов
Почему выбирают нас?
Благодаря слаженной работе команды и внедрённым стандартам качества, мы добились:
  • Скорость строительства
    Благодаря профессиональному опыту наших бригад, современным методам строительства - сроки строительства значительно сокращаются.
  • Высокое качество работ
    Каждая деталь проекта контролируется профессионалами своего дела.
  • Проверенные материалы
    Работаем исключительно с проверенными поставщиками, такими как СИБИТ и ТехноНИКОЛЬ
  • Экологичность
    Дома из СИБИТа отличаются высокими экологическими показателями и комфортностью проживания.
  • Экономия времени
    Вам нет необходимости тратить уйму времени на строительство своего дома, доверьте это нам. А чтобы вам было спокойнее - вы сможете наблюдать за ходом строительства из любой точки мира (видеонаблюдение на объекте 24/7)
Отзывы наших клиентов
  • Неоднократно обращалась в компанию СОТЫ, результат всегда ожидаемо -положительный! Приступают к работе достаточно быстро, без долгих ожиданий. На стройке всегда есть прораб, с которым есть возможность держать связь 24/7 и который делает отчет по каждому этапу работ.
    Дом строили "под ключ", получилось прекрасно!
    Юлия, Новолуговое (НСО)
  • Команда компании сработала оперативно и профессионально. Уже на этапе проектирования стало ясно, что строители действительно знают свое дело: быстро предложили оптимальные решения, учли все мои пожелания и предпочтения. Проект получился комфортным и функциональным, идеально вписавшимся в ландшафт участка.
    Процесс строительства прошел гладко и без задержек. Материалы использовались качественные, никаких проблем с качеством работ замечено не было. Дом построили точно в срок, причем выглядел он даже лучше, чем ожидал! Все коммуникации установлены аккуратно, фасад выглядит свежо и современно.
    Владимир, Заельцовский район, Новосибирск
  • Хочу поделиться своим положительным опытом сотрудничества с компанией!
    Недавно обратилась сюда с целью построить дом своей мечты — теплый, надежный и современный. Результат превзошел все ожидания!
    Во-первых, качество работ приятно удивило. Строители проявили профессионализм и внимание к деталям. Дом получился крепким, красивым и уютным.
    Во-вторых, сроки соблюдены точно, никаких задержек или проволочек.
    Отдельно хочу отметить команду сотрудников: вежливые, внимательные и доброжелательные ребята, готовые оперативно решать любые возникающие вопросы.
    Светлана, п. Озёрный (НСО)
  • Обращалась сюда впервые — хотела построить дом именно из сибита, и выбор оказался верным. Команда профессионалов подошла к делу ответственно и профессионально: специалисты помогли выбрать проект, проконсультировали по всем вопросам и оперативно приступили к работе.
    Особое внимание хочу уделить качеству строительства — оно безупречное! Материалы использовали качественные, работа выполнена аккуратно и чисто. Результат превзошел ожидания!
    Александра, Новосибирск
Остались вопросы?
Закажите бесплатную консультацию и узнайте как получить проект в подарок!
НАШИ КОНТАКТЫ
г. Новосибирск, ул. Коммунистическая, д.1, офис 4, 3 этаж
+7 (383) 286-04-33
info@soty-sk.ru
Информация на сайте носит ознакомительный характер и не является публичной офертой. Для получения информации об услугах и их стоимости, обратитесь по указанным на сайте контактам.
Made on
Tilda